Maison 1 chambre en Duplex

7380 QUIéVRAIN

ref:7059691

120.000 €

 Description



Dans le centre de QUIEVRAIN, NOMAD présente cette maison 1 chambre en duplex, sans Jardin actuellement louée (le bail en cours doit être respecté)

Sa composition :

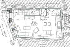
Séjour de +/- 30m2 comprenant les espaces Salon, Repas et Cuisine équipée (Frigo, hotte, fout, taque au gaz) + Toilettes individuelles

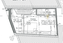
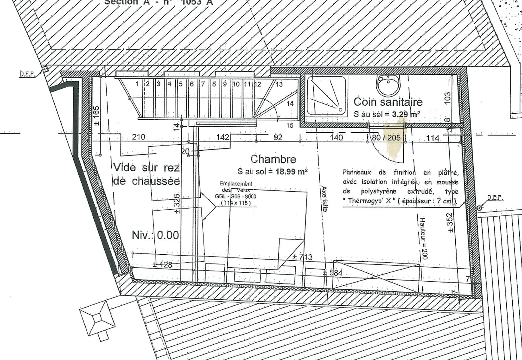
ETAGE : 1 chambre en mezzanine de +/- 19m2 + salle de douche de +/- 3m2

CHAUFFAGE : Central Gaz

Le bien est actuellement loué 490€/mois

Bien idéal pour un investissement ou une première acquisition

PEB C (195 kWh/m2.an) - Electricité CONFORME jusqu'en 2038

PRIX SOUHAITE : 120.000€ + Frais d'agence à charge de l'acquéreur

 Adresse

Impasse du Cygne, 1

7380 QUIéVRAIN

Belgique

 Composition

Chambres: 1

Salle de Bain: 1

Garage: 0

Parking: 0

Surface Habitable: 59 m2

Surface Totale: -- m2

 Extérieur

Façades: 2

Jardin: -- m2

Terrasse: Non

 Energie

Niveau PEB: C

Cons. d’énergie : 195kwh/m²/an